The tree house
- Conroy Bruwer

- Aug 30, 2018
- 1 min read
I had to study all the available material on this Cape Town house and discuss the structural elements with your structures lecturer.
Special attention had be given to the “tree” elements and its connection to the roof.
I also had to take note of the following:
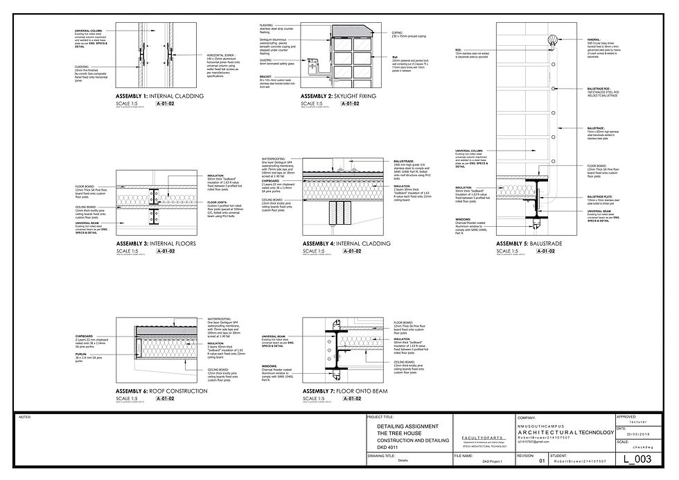
Materials used to construct the roof.
The roof appears to be supported by four glass walls
The three columns are placed off centre creating the impression that there are more loads transferred to some of the walls.
The following is the work i produced for my interim submission before making changes for portfolio.




























Comments